Location Appartements Tignes - Page 4
TOURIST RESIDENCE CGH LE TELEMARK**** TIGNES LE LAC - LES ALMES
-
Surface :
- 35 sqm
-
Number of bedrooms :
- 1 bedroom
-
Main distances :
- 150 m far from the ski lifts
- 550 m far from the French Ski School
-
Renter :
- Estate agency
-
- Ski-in Ski-out
-
-
-
-
-
-
- Balcony / Terrace
- Ski locker
TIGNES VAL CLARET - CENTER
-
Surface :
- 30 sqm
-
Number of bedrooms :
- 1 bedroom
-
Main distances :
- 200 m far from the ski lifts
- 250 m far from the French Ski School
-
Renter :
- Estate agency
-
- Ski-in Ski-out
-
- Balcony / Terrace
TIGNES LE LAC - LE BEC ROUGE
-
Surface :
- 80 sqm
-
Number of bedrooms :
- 2 bedrooms
-
Main distances :
- 20 m far from the ski lifts
- 20 m far from the French Ski School
-
Renter :
- Estate agency
-
- Ski-in Ski-out
-
-
-
- Balcony / Terrace
- Ski locker
TIGNES VAL CLARET - CENTER
-
Surface :
- 23 sqm
-
Main distances :
- 150 m far from the ski lifts
- 200 m far from the French Ski School
-
Renter :
- Private owner
-
- Ski-in Ski-out
-
- Balcony / Terrace
- Ski locker
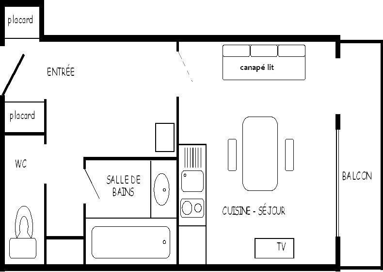
TIGNES LE LAC - LES ALMES
Located in Tignes le Lac next to the service (supermarket, restaurant, pub, bakery, sport shop...).
Kitchen: 2 hotplates, fridge, oven/microwave, dishwasher
Living room: 1 sofa bed 140cm - ...
-
Surface :
- 40 sqm
-
Number of bedrooms :
- 1 bedroom
-
Main distances :
- 250 m far from the ski lifts
- 250 m far from the French Ski School
-
Renter :
- Estate agency
TOURIST RESIDENCE CGH LE TELEMARK**** TIGNES LE LAC - LES ALMES
-
Surface :
- 70 sqm
-
Number of bedrooms :
- 3 bedrooms
-
Main distances :
- 150 m far from the ski lifts
- 550 m far from the French Ski School
-
Renter :
- Estate agency
-
- Ski-in Ski-out
-
-
-
-
-
-
- Balcony / Terrace
- Ski locker
TIGNES LE LAC - LE BEC ROUGE
-
Surface :
- 26 sqm
-
Main distances :
- 300 m far from the ski lifts
- 300 m far from the French Ski School
-
Renter :
- Estate agency
-
- Ski-in Ski-out
-
- Balcony / Terrace
- Ski locker
TIGNES LE LAC - LE BEC ROUGE
-
Surface :
- 63 sqm
-
Number of bedrooms :
- 2 bedrooms
-
Main distances :
- 20 m far from the ski lifts
- 20 m far from the French Ski School
-
Renter :
- Estate agency
-
- Ski-in Ski-out
-
- Balcony / Terrace
- Ski locker
TIGNES VAL CLARET - CENTER
-
Surface :
- 30 sqm
-
Main distances :
- 80 m far from the ski lifts
- 20 m far from the French Ski School
-
Renter :
- Estate agency
-
- Ski-in Ski-out
-
- Ski locker
TIGNES LE LAC - LE BEC ROUGE
-
Surface :
- 28 sqm
-
Main distances :
- 20 m far from the ski lifts
- 20 m far from the French Ski School
-
Renter :
- Estate agency
-
- Ski-in Ski-out
-
- Balcony / Terrace
- Ski locker
TOURIST RESIDENCE MMV ALTAVIVA**** TIGNES 1800
-
Surface :
- 40-44 sqm
-
Number of bedrooms :
- 1 bedroom
-
Main distances :
- 50 m far from the ski lifts
- 150 m far from the French Ski School
-
Renter :
- Estate agency
-
- Ski-in Ski-out
TOURIST RESIDENCE MMV ALTAVIVA**** TIGNES 1800
-
Surface :
- 62-66 sqm
-
Number of bedrooms :
- 3 bedrooms
-
Main distances :
- 50 m far from the ski lifts
- 150 m far from the French Ski School
-
Renter :
- Estate agency
-
- Ski-in Ski-out
TIGNES VAL CLARET - CENTER
-
Surface :
- 30 sqm
-
Main distances :
- 80 m far from the ski lifts
- 20 m far from the French Ski School
-
Renter :
- Estate agency
-
- Ski-in Ski-out
-
-
- Ski locker
TIGNES LE LAC - LE BEC ROUGE
KITCHEN: Fridge, oven, dishwasher, microwave, 2 electric hobs.
BATHROOM: Bathtub, separate toilet
LIVING ROOM: sofa bed, TV
-
Surface :
- 28 sqm
-
Main distances :
- 90 m far from the ski lifts
- 90 m far from the French Ski School
-
Renter :
- Estate agency
TIGNES VAL CLARET - CENTER
-
Surface :
- 41 sqm
-
Number of bedrooms :
- 1 bedroom
-
Main distances :
- 500 m far from the ski lifts
- 400 m far from the French Ski School
-
Renter :
- Estate agency
-
-
-
- Balcony / Terrace
- Ski locker
TIGNES VAL CLARET - GRANDE MOTTE
-
Surface :
- 42 sqm
-
Number of bedrooms :
- 2 bedrooms
-
Main distances :
- 600 m far from the ski lifts
-
Renter :
- Estate agency
-
-
-
- Balcony / Terrace
TIGNES VAL CLARET - CENTER
-
Surface :
- 37 sqm
-
Number of bedrooms :
- 1 bedroom
-
Main distances :
- 150 m far from the ski lifts
- 300 m far from the French Ski School
-
Renter :
- Private owner
-
- Ski-in Ski-out
-
- Balcony / Terrace
- Ski locker
TIGNES VAL CLARET - CENTER
-
Surface :
- 20 sqm
-
Main distances :
- 200 m far from the ski lifts
- 250 m far from the French Ski School
-
Renter :
- Estate agency
-
- Ski-in Ski-out
-
- Balcony / Terrace
TIGNES LE LAC - LE BEC ROUGE
-
Surface :
- 16 sqm
-
Main distances :
- 20 m far from the ski lifts
- 20 m far from the French Ski School
-
Renter :
- Estate agency
-
- Ski-in Ski-out
-
- Balcony / Terrace
- Ski locker
TOURIST RESIDENCE LE YÉTI*** TIGNES LE LAC - LES ALMES
-
Surface :
- 85 sqm
-
Number of bedrooms :
- 4 bedrooms
-
Main distances :
- 350 m far from the ski lifts
- 350 m far from the French Ski School
-
Renter :
- Estate agency
-
-
-
-
- Balcony / Terrace
- Ski locker































































































































































































































